18件
-
過去掲載物件
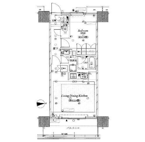
/築14年 /37階建
- エレベーター
- 免震構造
- ディスポーザー
- バス・トイレ別
- バルコニー
- システムキッチン
駅まで徒歩3分の好立地です。70.7以上ある広いお部屋ですので、ぜひご検討ください。ゲストルームがあり、お客様用のバスルームや寝室もあります。お気に入りの中古マンションで満足度の高い生活をしましょう。交通の利便性に優れ、住み良い環境が整うつくばエクスプレス浅草周辺は、住みたいエリアとして注目を集めています。ぜひ、不動産の購入をご検討してはいかがでしょうか。
-
1億7,480万円
10階 / 54.59㎡ / 2LDK /築4年 /11階建
- エレベーター
- バス・トイレ別
- バルコニー
- フローリング
- 宅配ボックス
フローリングなので、どんな世代の方にもなじみます。二重床構造のため、遮音性も高くなっています。この物件は二重天井なので天井照明のレイアウトも替えやすいです。バルコニーが付いています。不動産のことで確認したいことがあるなら、メール又はお電話にてご連絡ください。当社は豊富な経験と知識を持っているので、丁寧にお答えします。
-
7,599万円
4階 / 31.35㎡ / 1DK /築6年 /14階建
- エレベーター
- バス・トイレ別
- バルコニー
- TVモニタ付インターホン
- システムキッチン
- オートロック
こだわりポイント満載のブリリア秋葉原。駅から徒歩6分圏内に立地しています。8.94平米の広さのバルコニー面積となっています。こちらは14階建ての建物です。お客様のこれからの生活に大きく関わってくる住まい探しを、当社が誠心誠意を持ってお手伝い致します。ぜひお客様の住まいに対するこだわりをお聞かせください。
-
1億498万円
6階 / 75.29㎡ / 3LDK /築23年 /12階建
- エレベーター
- リフォーム済
- バス・トイレ別
- バルコニー
- システムキッチン
- ガスコンロ
「ネバーランド上野松が谷」のここがイチオシ。きれいで使い勝手の良いシステムキッチン付きの物件になります。生活を快適にする設備も充実のこの物件は1億498万円です。地上12階建てで、住みやすい物件です。台東区で不動産を購入するなら、利便性の高い暮らしができる日比谷線入谷が良いでしょう。当社は地域密着型で、確かな情報をご提供しているので、安心してお任せ下さい。
-
8,290万円
7階 / 45.25㎡ / 1LDK /築14年 /37階建
- ペット相談
- エレベーター
- 免震構造
- バルコニー
- 宅配ボックス
- 複層ガラス
台東区に居住して約6年、担当も住んだことのある浅草タワー是非、内見してみませんか?
-
1億9,997万円
- / 89.42㎡ / 3LDK /築26年 /3階建
- 都市ガス
- システムキッチン
- 公共下水
・室内フルリフォーム後のお引き渡し
・各お部屋に、収納スペース有り
・上野小も徒歩圏内 -
過去掲載物件
/築14年 /37階建
- エレベーター
- 床暖房
- システムキッチン
- 宅配ボックス
- インターネット対応
・ゲストルーム、フロントサービスなど居住者様目線のマンション
・各階ゴミ置き場 -
8,580万円
8階 / 86.10㎡ / 4LDK /築40年 /14階建
- システムキッチン
・入谷駅2分、4LDKの角のお部屋、2015年に全面リフォーム履歴有
・2020年に、大規模修繕工事済み -
過去掲載物件
/築28年 /8階建
- TVモニタ付インターホン
- システムキッチン
- 浴室乾燥機
・売主様非居住者有り
・入谷駅徒歩約3分、鶯谷駅徒歩約13分、上野駅徒歩約16分の利便性の高い立地
・金曽木小も徒歩圏内の為子育て環境良好
・ペット飼育不可
・マンション内に、宅配ボックス完備
・長期修繕計画有り -
過去掲載物件
/築3年 /13階建
- エレベーター
- 床暖房
- ウォークインクロゼット
- システムキッチン
- 浴室乾燥機
- 宅配ボックス
・秋葉原駅を始め9駅利用可能な立地
・北西角のお部屋につき、通風良好
・1LDKの間取りで、ウォークインクローゼットも有り、収納力も豊富です
・浴室乾燥機、ミストサウナなど室内の設備も豊富
・規約は有りますがペット飼育可
・まずは、マイホームを持ちたいそんな方是非、一度御内見をしてみませんか? -
過去掲載物件
/築22年 /10階建
・4駅6路線が徒歩約7分以内で、利用可
・新規内装フルリノベーション
・不在時に異常を知らせるセキュリティシステム搭載
・平成小も徒歩圏内 -
過去掲載物件
/築42年 /8階建
- エレベーター
- 温水洗浄便座
- 浴室乾燥機
・稲荷町駅徒歩約8分、上野駅徒歩約10分の利便性
・スーパーやコンビニが徒歩圏内
・浴室には、浴室乾燥機完備 -
過去掲載物件
/築27年 /10階建
・3LDKの間取り
-
過去掲載物件
/築3年 /14階建
- システムキッチン
・上野駅徒歩約8分、複数路線利用可
・空室の為、生活のイメージをしながらゆっくり御内見が可 -
過去掲載物件
/築25年 /14階建
- 陽当り良好
- システムキッチン
- 陽当り良好
- 眺望良好
・三方角のお部屋につき、明るく開放的な空間
・無駄の少ない動線
・8階部分につき、陽当たり良好と眺望良好
・上野小も徒歩圏内 -
過去掲載物件
/築24年 /14階建
- ペット相談
- 陽当り良好
- エレベーター
- 床暖房
- ウォークインクロゼット
- 駐輪場
~上野駅迄徒歩約5分の立地の為毎日の生活にも、ゆとりを持って生活可能な立地~
・3LDKの間取りの為子育てをされている方にも、嬉しい間取り
・バルコニーは、2面有り、天気が良い日は椅子を出しアフターヌーティンなどをお楽しみ下さい
・空室の為リフォームのお見積もりなども取ることが可能
・隅田川の花火大会開催の際は、屋上が開放される予定です -
過去掲載物件
/築26年 /8階建
- エレベーター
- TVモニタ付インターホン
- システムキッチン
- 宅配ボックス
~上野駅徒歩約6分、複数路線利用可能な為通勤、通学にも利便性の高い立地~
・平成24年大規模修繕工事実施済み、管理体制良好
・規約は、有りますがペット飼育可
・不在時に、重宝される宅配ボックス付き
・オートロック付きの為防犯面も安心
オートロックが付いた物件で、安心できる暮らしを送りましょう。ファミリーからニーズが高くてご好評を頂いている2LDK物件です。こちらは12階建ての物件です。動線を意識したデザインのシステムキッチン付きで作業能率が上がります。住まい探しで大切なことは、その住まいがどれだけあなたの生活スタイルに適しているかです。こだわりやご要望などあれば、当社にお任せ下さい。